
SMAKLIG







Product description

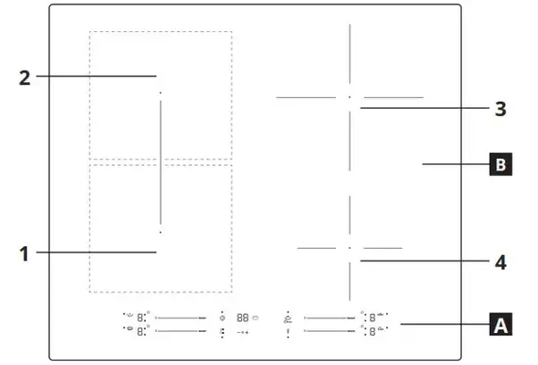
A. Control panel
B. Cooking zones: 1, 2, 3, 4
Pot incorrectly positioned or missing
This symbol appears if the pot is not suitable for induction cooking, is not positioned correctly or is not of an appropriate size for the cooking zone selected. If no pot is detected within 30 seconds of making the selection, the cooking zone switches off.
Residual heat
If the display shows “H”, the cooking zone is still hot. When the cooking zone cools down, the display goes off.
Control panel

| 1. Symbols of Automatic functions 2. Cooking level selected 3. Cooking zone off 4. Scroll keypad 5. Booster |
6. On/Off 7. Bridge+ Mode 8. Timer control 9. Cooking time indicator 10. Activation of Automatic Functions |
11. OK/Key lock button 12. Pause 13. Zone active Led 14. Timer Led 15. Timer symbol |
Daily use
POSITIONING
CAUTION: Never cover the control panel with cookware or any other objects otherwise the product could enter in protection mode. To restore the working condition of the product, remove the cookware and wait at least 10 seconds before using the product. In the cooking zones close to the control panel, pots and pans must be kept inside the markings and centered within the cooking zones. When grilling or frying, is it recommended to use the rear cooking zones.

First Use
POWER LIMITATION
At the time of purchase, the hob is set to the maximum possible power. Adjust the setting in relation to the limits of the electrical system in your home as described in the following paragraph.
NOTE: in case of activation of the max power level of 2.5 kW, some features with more power demand will be not available.
To set the power of the hob:
Once you have connected the device to the mains power supply, you can set the power level within 60 seconds.
Press the timer “+” button for at least 5 seconds. The display
shows PL
Press
the button until the last power level selected appears.
| PL | 2.5kW | 4.0 kW | 6.0 kW | 7.2 kW |
| P | 2 | 4 | 6 | 7 |
| L | 5 | 0 | 0 | 2 |
Functions
BRIDGE+ MODE
By selecting the “Bridge+ Mode” button, you can combine two cooking zones and use them at the same power by covering the entire surface with a large pot or partially with a round/oval pot. The function always remains on and, when using only one pot, can be moved over the entire area. In this case, both left-hand scroll keypads can be used indifferently. Ideal for cooking with oval or rectangular pots or with pan supports. To activate/deactivate the bridge + zone press the bridge+ button
AUTOMATIC FUNCTIONS
Place the pot in position and select the cooking zone.
Press the automatic functions button. “A” will appear on the display. The indicator for the special feature available for the cooking zone will light up.
Press “ok” button to confirm, otherwise the special function indicator will start blinking, waiting for the ok. The power level during the special function is preset and cannot be modified. To deactivate the automatic functions, press the “0” button.
Melting
This function allows you to bring food to the ideal temperature for melting and to maintain the condition of the food without risk of burning. This method is ideal, as it does not damage delicate foods such as chocolate, and prevents them from sticking to the pot.
Keep Warm
This feature allows you to keep your food at an ideal temperature, usually after cooking is complete, or when reducing liquids very slowly. Ideal for serving foods at the perfect temperature.
Simmering
This function is ideal for maintaining a simmering temperature, allowing you to cook food for long periods with no risk of burning. Ideal for long-cooking recipes (rice, sauces, roasts) with liquid sauces.
Boiling
This function allows you to bring water to the boil and keep it boiling, with lower energy consumption. About 2 litres of water (preferably at room temperature) should be placed in the pan, and left uncovered. In all cases, users are advised to monitor the boiling water closely, and check the amount of water remaining regularly.
NOTE: in case of activation of the power management at 2.5kW, boiling function will not be available.
Troubleshooting
- Check that the electricity supply has not been shut off.
- If you are unable to turn the hob off after using it, disconnect it from the power supply.
- If alphanumeric codes appear on the display when the hob is switched on, consult the following table for instructions.
Please note:
The presence of water, liquid spilled from pots or any objects resting on any of the hob buttons can accidentally activate or deactivate the control panel lock function.
| Display code | Description | Possible causes | Solution |
| No Code | You cannot activate or operate the hob. | There is residual water or stains on the control panel. | Clean and dry the control panel. |
| No Code | The display does not react to the touch. | Part of the display is covered or the pots are placed too near to the display. | Remove the objects. Move the pots away from the display. If the problem persists wait 10 seconds. |
| FOE1 | Cookware is detected but it is not compatible with requested operation. | The cookware is not well positioned on the cooking zone, or it is not compatible with one or more cooking zones. | Press On/Off button twice to remove the FOE1 code and restore the functionality of the cooking zone. Then, try to use the cookware with a different cooking zone, or use different cookware. |
| FOE7 | Wrong power cord connection | The power supply connection is not exactly as indicated in “ELECTRICAL CONNECTION” paragraph. | Adjust the power supply connection according to “ELECTRICAL CONNECTION” paragraph. |
| FOEA | The control panel switches off because of excessively high temperatures. | The internal temperature of electronic parts is too high. | Wait for the hob to cool down before using it again. |
| FOE2, FOE4, FOE6, FOES, FOEC, F1E1, F6E1, F7E5, F7E6, F2E1 |
Disconnect the hob from the power supply. Wait a few seconds then reconnect the hob to the power supply. If the problem persists, call the service centre and specify the error code that appears on the display. |
||
| e.g. |
The hob does not allow a special function to be activated. | The power regulator limits the power levels in accordance with the maximum value set for the hob. | See paragraph “Power management”. |
| e.g. P→ 5 [Power level lower than level requested] |
The hob automatically sets a minimum power level to ensure that the cooking zone can be used. | The power regulator limits the power levels in accordance with the maximum value set for the hob. | See paragraph “Power management”. |
To download the full version visit www.ikea.com
| IKEA | SMAKLIG | 504.678.83 004.678.85 804.678.86 |
4 | 18,5 x 20,0 cm 18,5 x 20,0 cm 21,0 cm 15,0 cm |
37,5 x 20,0 cm | 196,2 188,3 180,2 176,8 | 191,7 | 186,7 | |||
| This appliance meets the Eco design require-ments of European Regulation n.66/2014, in conformity to the European Standard EN 60350-2 |
Brand | Model | Customer Article Number |
Type of hob : ELECTRIC |
Number of cooking zones |
Heating technology. induction |
Dimension of Heater (0 or LxW) |
Energy consumption (EC electric cooking) (Wh/Kg) | |||
| Left front Left rear Right rear Right front | Bridge’ Zone |
Left front Left rear Right rear Right front | Bridge• Zone |
of the hob |
|||||||
![]()
UNITED KINGDOM – IRELAND
Phone number: 02076601517
Rate: Local rate
Opening hours:
Monday – Friday : 8.00am – 6.00pm
Saturday: 8.30am – 4.30pm
Sunday: 9.30am – 3.30pm